服务热线


网站导航
主营产品:
新闻动态
当前位置:主页 > 新闻动态

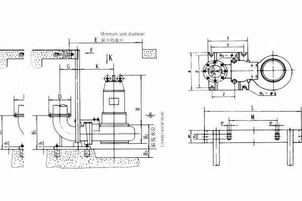
潜水泵的使用要点

时间:2021-07-08 11:44 点击次数:98
 

潜水泵,在生产生活中起着重要作用,在使用中应注意以下几点。

一、选购潜水泵时应留意其型号、流量和扬程。如选用的规格不恰当,将无法获得足够的出水量,不能发挥机组的效率。另外,还应搞清电机的旋转方向,某些类型的潜水泵正转和反转时皆可出水,但反转时出水量小、电流大,其反转会损坏电机绕组。为防止潜水泵在水下工作时漏电而引发触电事故,应装漏电保护开关。

二、安装小型潜水泵时,电缆线要架空,电源线不要太长。机组下水时切勿使电缆受力,以免引起电源线断裂。潜水泵不要沉入泥中,否则会导致散热不良而烧坏电机绕组。

三、尽量避免在低压时开机。电源电压与额定电压不可相差10%,电压过高会引起电机过热而烧坏绕组,电压过低则电机转速下降,如达不到额定转速的70%时,启动离心开关会闭合,造成启动绕组长时间通电而发热甚至烧坏绕组和电容器。不要频繁地开关电机,这是因为电泵停转时会产生回流,若立即开机,会使电机负载启动,导致启动电流过大而烧坏绕组。

四、切莫让水泵长期超负荷运转,不要抽含沙量大的水,电泵脱水运行的时间不宜过长,以免使电机过热而烧毁。机组在作业中,操作者必须随时观察其工作电压和电流是否在铭牌上规定的数值内,若不符合应使电机停止运转,找出原因并排除故障。

五、平时多检查电机,如发现下盖有裂纹、橡胶密封环损坏或失效等,应及时更换或修复,以防水渗入机器。

1576638051566592.jpg


Copyright © 常州天宇医疗信息技术有限公司 版权所有  

添加QQ客服:

服务热线

扫一扫,关注我们

微信二维码
weixinhao
微信号